詳細介紹
安裝使用與維護
上海泰通閥門有限公司公司生產的內螺紋柱塞閥出廠前均按ZBJ16006進行試驗,驗收,使用時只需將外表及孔腔清洗干凈,不必拆洗和更換。內螺紋柱塞閥可在任意位置安裝,介質流動方向見閥體上箭頭所示。經過一段時間的使用密封環如有磨損及滲漏必須先將閥門關閉后,在將法蘭螺栓均勻的略加旋緊以至于下滲漏即可。同時更換時應防止柱塞和新裝密封環裂痕和碰傷。在短時間內,冷熱交替溫差較大的管道中,內螺紋柱塞閥不能使用。
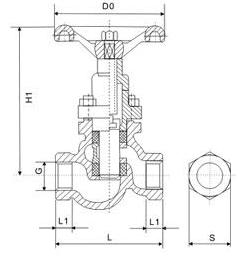
主要結構尺寸及外形尺寸
性能規范
四、 U11SM內螺紋柱塞閥 試驗壓力
產品尺寸
| |||||||||||||||||||||||||||||||||||||||||||||||||||||||||||||||||||||||||||||||||||||||||||||||||||||||
溫馨提示:“U11SM內螺紋柱塞閥”所有文字、數據、圖片均只適用于參考。
如需與實物相吻合的性能參數、結構尺寸參數等詳情請來電來函索取。
電話:021-68103333 傳真:021-51686322
如需與實物相吻合的性能參數、結構尺寸參數等詳情請來電來函索取。
電話:021-68103333 傳真:021-51686322

軟密封蝶閥視頻介紹





掃一掃關注我們